Guldborgsund
Sundskolen
Fleksible kontorlokaler til projektkontorer, voksende virksomheder og midlertidige etableringer.
Indflytningsklare skolemoduler med gode læringsmiljøer – hurtigt på plads.
Trygge daginstitutionsmoduler med moderne og inspirerende miljøer til leg og læring.
Behagelige boliger i form af korridorværelser eller lejligheder. Hurtigt etableret, når behovet opstår.
Hurtige, fleksible plejemoduler til alt fra lægeklinikker til plejeboliger.
Har du brug for noget ud over det sædvanlige? Vi bygger alt fra avancerede plejemiljøer til hundedaginstitutioner.
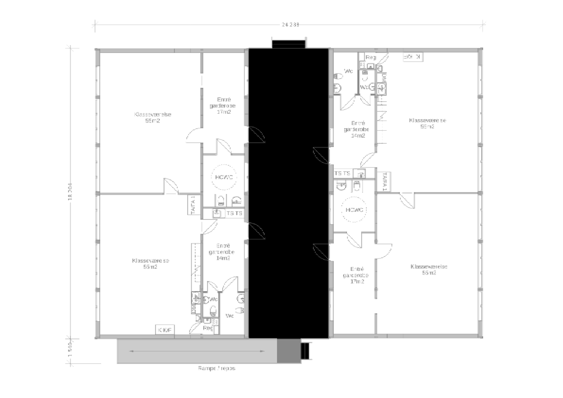
Det kan nogle gange betale sig at tænke ind i boksen. I hvert fald for Sundskolen, der i 2019 havde brug for mere plads – og hvor tid var en mangelvare.
12 skræddersyede Expandia S2000 FSK-moduler. Leveret ved skolens legeplads og opstillet inden for bare tre uger. Hele forløbet blev planlagt tæt sammen med Sundskolen, så elever og lærere mærkede mindst muligt til udvidelsen. Og ikke et eneste træ eller klatrestativ blev rørt undervejs.
Hvad koster en sådan løsning, kan modulerne stå på alle typer underlag, og hvad indgår i lejen? Vi ved, at der kan dukke en hel del spørgsmål op, når man begynder at overveje moduler? Derfor står vores eksperter klar til at svare på alt det, du går og tænker på.
Kundesager
Siden vi startede for over 35 år siden har vi leveret tusindvis af midlertidige lokaler til skoler, virksomheder og boliger i Sverige, Danmark, Norge og Finland. Her kan du se nogle af de løsninger, vi har skabt for vores kunder.