København
Byens Steinerskole
Fleksible kontorlokaler til projektkontorer, voksende virksomheder og midlertidige etableringer.
Indflytningsklare skolemoduler med gode læringsmiljøer – hurtigt på plads.
Trygge daginstitutionsmoduler med moderne og inspirerende miljøer til leg og læring.
Behagelige boliger i form af korridorværelser eller lejligheder. Hurtigt etableret, når behovet opstår.
Hurtige, fleksible plejemoduler til alt fra lægeklinikker til plejeboliger.
Har du brug for noget ud over det sædvanlige? Vi bygger alt fra avancerede plejemiljøer til hundedaginstitutioner.
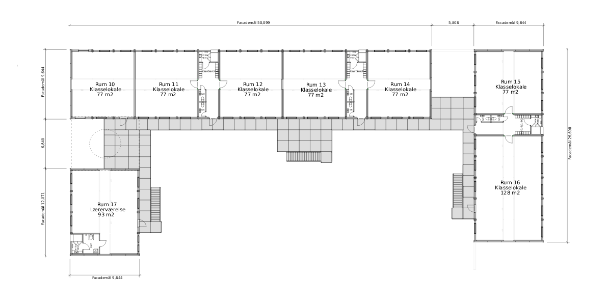
Byens Steinerskole er et godt eksempel på, hvordan en skole kan skabe sit helt eget univers i Expandia-moduler. I alt 60 moduler blev leveret og opstillet i en U-form rundt om skolegården, hvor en stor og nybygget træterrasse skaber en naturlig sammenhæng mellem modulerne og et åbent legeområde.
”Vi er en skole, der har et pædagogisk værdisæt, hvor bæredygtighed er meget vigtigt. Det var derfor et stort plus, at vi for eksempel kunne få træfacader på modulerne og gennemlyste rum med vinduer på begge sider,” fortæller Frederikke Larsson, der er skoleleder på Byens Steinerskole.
Hvad koster en sådan løsning, kan modulerne stå på alle typer underlag, og hvad indgår i lejen? Vi ved, at der kan dukke en hel del spørgsmål op, når man begynder at overveje moduler? Derfor står vores eksperter klar til at svare på alt det, du går og tænker på.
Kundesager
Siden vi startede for over 35 år siden har vi leveret tusindvis af midlertidige lokaler til skoler, virksomheder og boliger i Sverige, Danmark, Norge og Finland. Her kan du se nogle af de løsninger, vi har skabt for vores kunder.