København
Skolen i Sydhavnen
Fleksible kontorlokaler til projektkontorer, voksende virksomheder og midlertidige etableringer.
Indflytningsklare skolemoduler med gode læringsmiljøer – hurtigt på plads.
Trygge daginstitutionsmoduler med moderne og inspirerende miljøer til leg og læring.
Behagelige boliger i form af korridorværelser eller lejligheder. Hurtigt etableret, når behovet opstår.
Hurtige, fleksible plejemoduler til alt fra lægeklinikker til plejeboliger.
Har du brug for noget ud over det sædvanlige? Vi bygger alt fra avancerede plejemiljøer til hundedaginstitutioner.
Mandag aften den 26. november 2012 brændte den næsten færdigbyggede Skolen i Sydhavnen i København ned ved en påsat brand, og i løbet af få timer stod tæt på 1.000 elever og lærere uden undervisningslokaler.
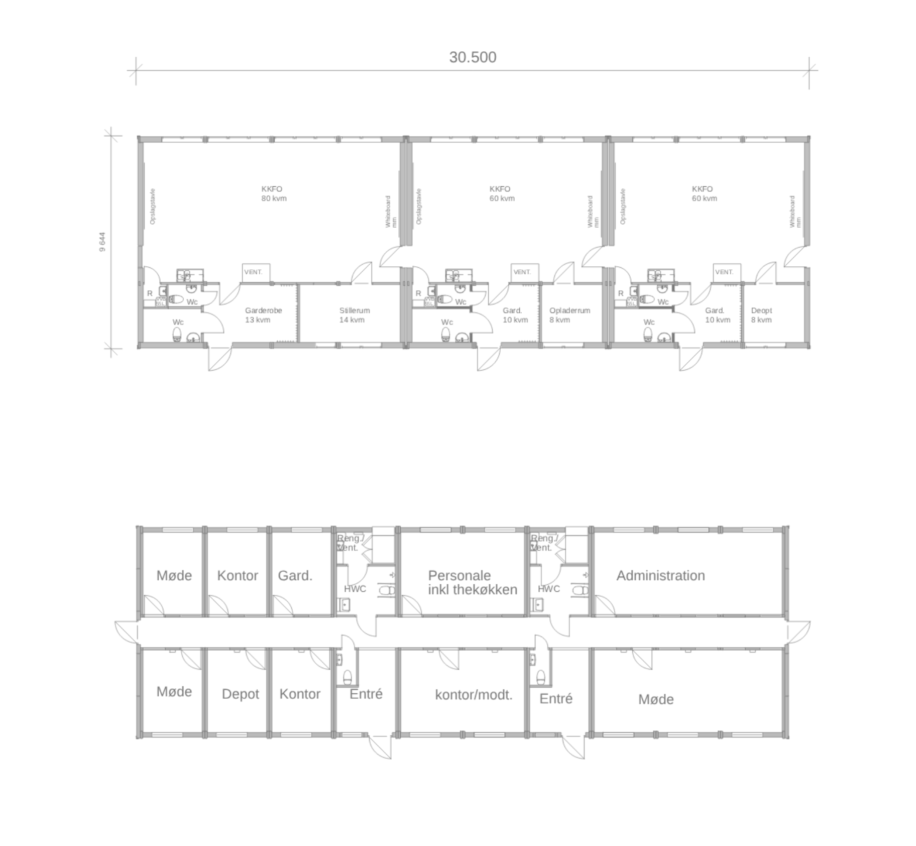
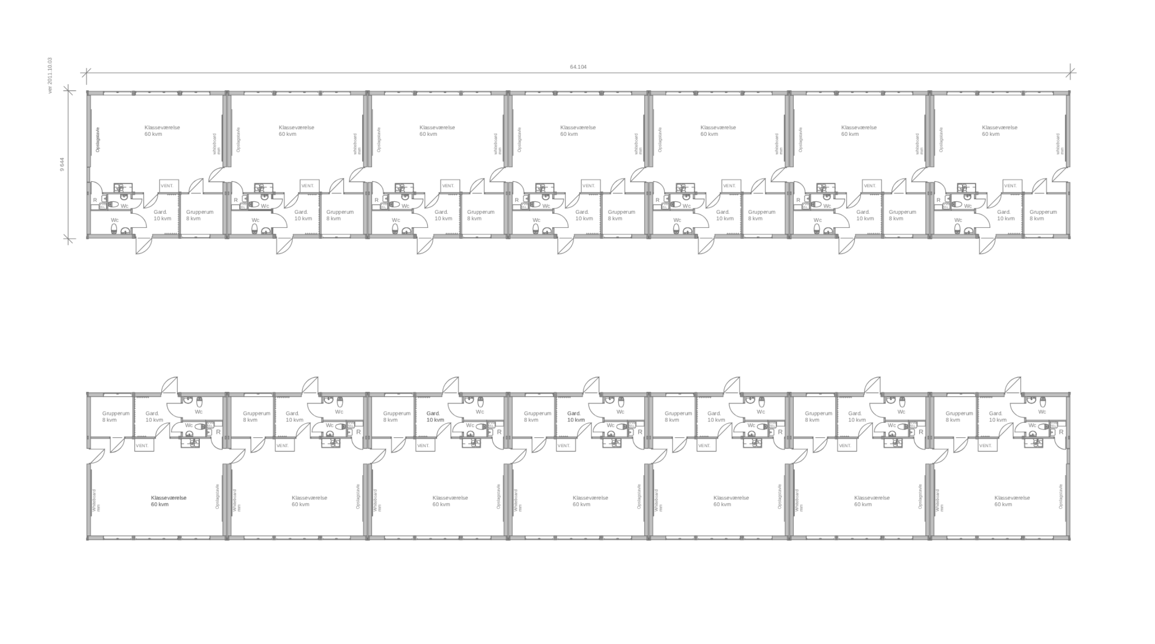
På kun 30 dage opstillede vi en fuldt udstyret midlertidig skole på 2.436 m² med 23 klasselokaler, toiletter, garderober med lockers, faglokaler, personalerum og kontorer til lærere og elever fra 0. til 9. klasse. Indtil deres nye skole blev taget i brug i 2015, havde eleverne deres dagligdag i Expandia S2000 skolemoduler.
Hvad koster en sådan løsning, kan modulerne stå på alle typer underlag, og hvad indgår i lejen? Vi ved, at der kan dukke en hel del spørgsmål op, når man begynder at overveje moduler? Derfor står vores eksperter klar til at svare på alt det, du går og tænker på.
Kundesager
Siden vi startede for over 35 år siden har vi leveret tusindvis af midlertidige lokaler til skoler, virksomheder og boliger i Sverige, Danmark, Norge og Finland. Her kan du se nogle af de løsninger, vi har skabt for vores kunder.