Hundested
Skolen ved Havet
Fleksible kontorlokaler til projektkontorer, voksende virksomheder og midlertidige etableringer.
Indflytningsklare skolemoduler med gode læringsmiljøer – hurtigt på plads.
Trygge daginstitutionsmoduler med moderne og inspirerende miljøer til leg og læring.
Behagelige boliger i form af korridorværelser eller lejligheder. Hurtigt etableret, når behovet opstår.
Hurtige, fleksible plejemoduler til alt fra lægeklinikker til plejeboliger.
Har du brug for noget ud over det sædvanlige? Vi bygger alt fra avancerede plejemiljøer til hundedaginstitutioner.
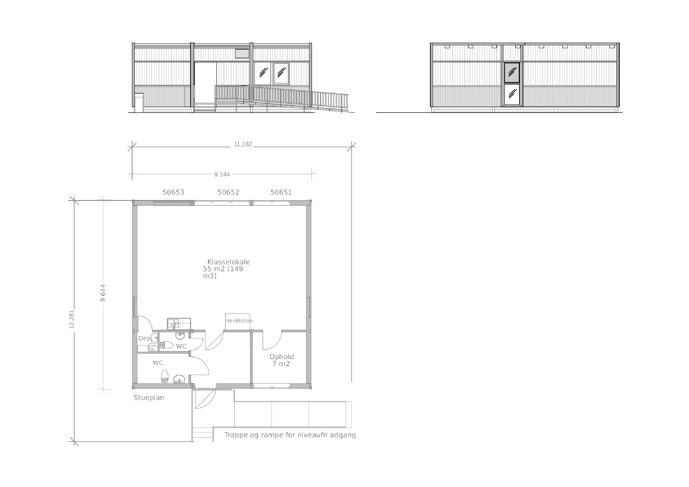
Det er ikke kun eleverne på Skolen ved Havet, der har vokseværk. Det har skolen også. Så mens privatskolen får bygget den helt rigtige permanente skolebygning til 125 elever, er en del af den midlertidige pladsudfordring løst med en mindre modulløsning på tre Expandia S2000-skolemoduler.
De tre moduler har givet 84 ekstra kvadratmeter med et klasselokale på 51 m², en fordelingsgang, to toiletter og et lille opholdsrum på 7 m². Et godt eksempel på, at moduler også er løsningen til de mindre pladsudfordringer.
Hvad koster en sådan løsning, kan modulerne stå på alle typer underlag, og hvad indgår i lejen? Vi ved, at der kan dukke en hel del spørgsmål op, når man begynder at overveje moduler? Derfor står vores eksperter klar til at svare på alt det, du går og tænker på.
Kundesager
Siden vi startede for over 35 år siden har vi leveret tusindvis af midlertidige lokaler til skoler, virksomheder og boliger i Sverige, Danmark, Norge og Finland. Her kan du se nogle af de løsninger, vi har skabt for vores kunder.