Lystrup
Lystrup Skole
Fleksible kontorlokaler til projektkontorer, voksende virksomheder og midlertidige etableringer.
Indflytningsklare skolemoduler med gode læringsmiljøer – hurtigt på plads.
Trygge daginstitutionsmoduler med moderne og inspirerende miljøer til leg og læring.
Behagelige boliger i form af korridorværelser eller lejligheder. Hurtigt etableret, når behovet opstår.
Hurtige, fleksible plejemoduler til alt fra lægeklinikker til plejeboliger.
Har du brug for noget ud over det sædvanlige? Vi bygger alt fra avancerede plejemiljøer til hundedaginstitutioner.
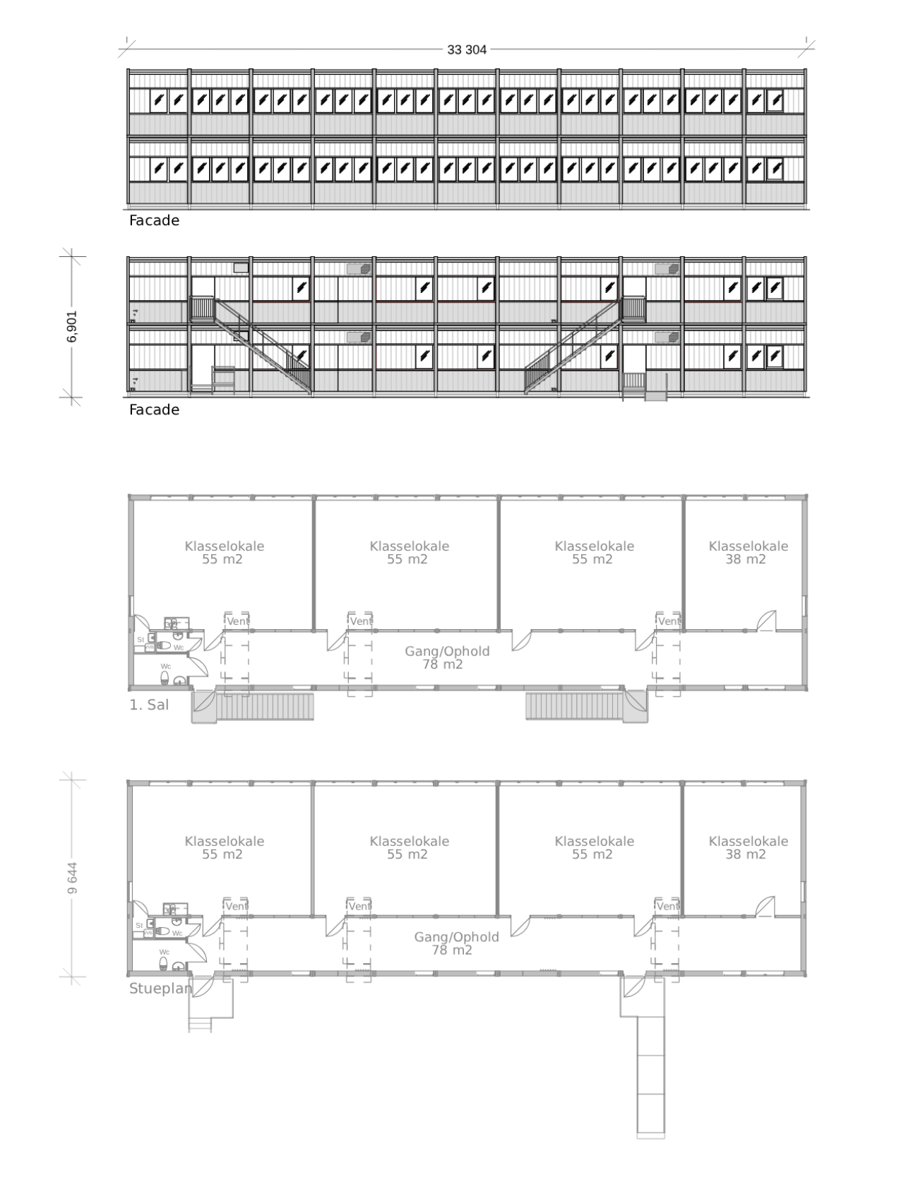
Oftest placeres midlertidige moduler i for eksempel skolegården, på sports- eller p-pladsen. Der hvor der er ”fladt”, og hvor der kræves meget lidt eller slet intet forarbejde. Men på Lystrup Skole ved Aarhus var det noget mere op ad bakke. For der var en 80 cm niveauforskel på det areal, hvor 22 Expandia S2000-skolemoduler skulle placeres.
Løsningen blev, at de mere end 600 m² klasselokaler i to etager blev monteret på et punktfundament i beton. Ret enkelt – og et eksempel på, at vi nok skal få modulerne i vater, selvom underlaget ikke er det.
Hvad koster en sådan løsning, kan modulerne stå på alle typer underlag, og hvad indgår i lejen? Vi ved, at der kan dukke en hel del spørgsmål op, når man begynder at overveje moduler? Derfor står vores eksperter klar til at svare på alt det, du går og tænker på.
Kundesager
Siden vi startede for over 35 år siden har vi leveret tusindvis af midlertidige lokaler til skoler, virksomheder og boliger i Sverige, Danmark, Norge og Finland. Her kan du se nogle af de løsninger, vi har skabt for vores kunder.