Frederikssund
Croda Denmark A/S
Fleksible kontorlokaler til projektkontorer, voksende virksomheder og midlertidige etableringer.
Indflytningsklare skolemoduler med gode læringsmiljøer – hurtigt på plads.
Trygge daginstitutionsmoduler med moderne og inspirerende miljøer til leg og læring.
Behagelige boliger i form af korridorværelser eller lejligheder. Hurtigt etableret, når behovet opstår.
Hurtige, fleksible plejemoduler til alt fra lægeklinikker til plejeboliger.
Har du brug for noget ud over det sædvanlige? Vi bygger alt fra avancerede plejemiljøer til hundedaginstitutioner.
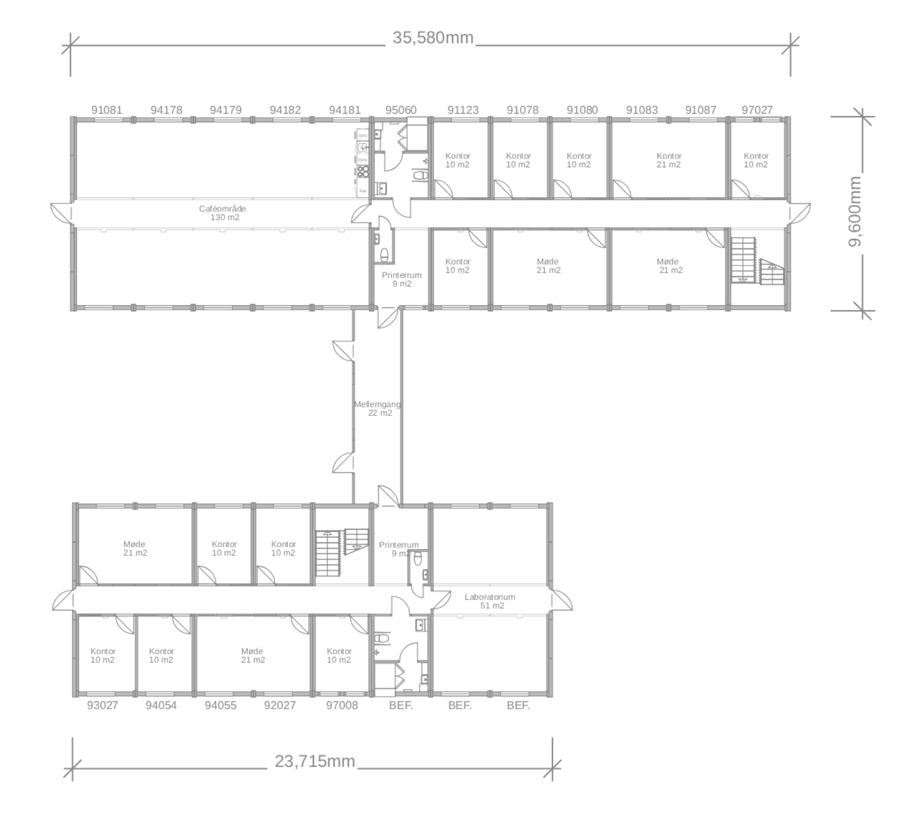
Har I særlige ønsker og krav til farven og materialerne på jeres moduler? Så kan vi altid tilpasse vores løsning. Som for eksempel med modulerne til biotek-virksomheden Croda Denmark A/S i Frederikssund.
Her er de 40 kontormoduler i vores K2000-serie monteret med hvide Vivix-facadeplader, så de får et udtryk, der passer til de eksisterende bygninger. De 1.160 modulskabte kvadratmeter i to etager bruges som kontorer, laboratorier og kantine – bygget op i to bygninger, der er forbundet med en mellemgang.
Hvad koster en sådan løsning, kan modulerne stå på alle typer underlag, og hvad indgår i lejen? Vi ved, at der kan dukke en hel del spørgsmål op, når man begynder at overveje moduler? Derfor står vores eksperter klar til at svare på alt det, du går og tænker på.
Kundesager
Siden vi startede for over 35 år siden har vi leveret tusindvis af midlertidige lokaler til skoler, virksomheder og boliger i Sverige, Danmark, Norge og Finland. Her kan du se nogle af de løsninger, vi har skabt for vores kunder.