København
Tscherning A/S
Fleksible kontorlokaler til projektkontorer, voksende virksomheder og midlertidige etableringer.
Indflytningsklare skolemoduler med gode læringsmiljøer – hurtigt på plads.
Trygge daginstitutionsmoduler med moderne og inspirerende miljøer til leg og læring.
Behagelige boliger i form af korridorværelser eller lejligheder. Hurtigt etableret, når behovet opstår.
Hurtige, fleksible plejemoduler til alt fra lægeklinikker til plejeboliger.
Har du brug for noget ud over det sædvanlige? Vi bygger alt fra avancerede plejemiljøer til hundedaginstitutioner.
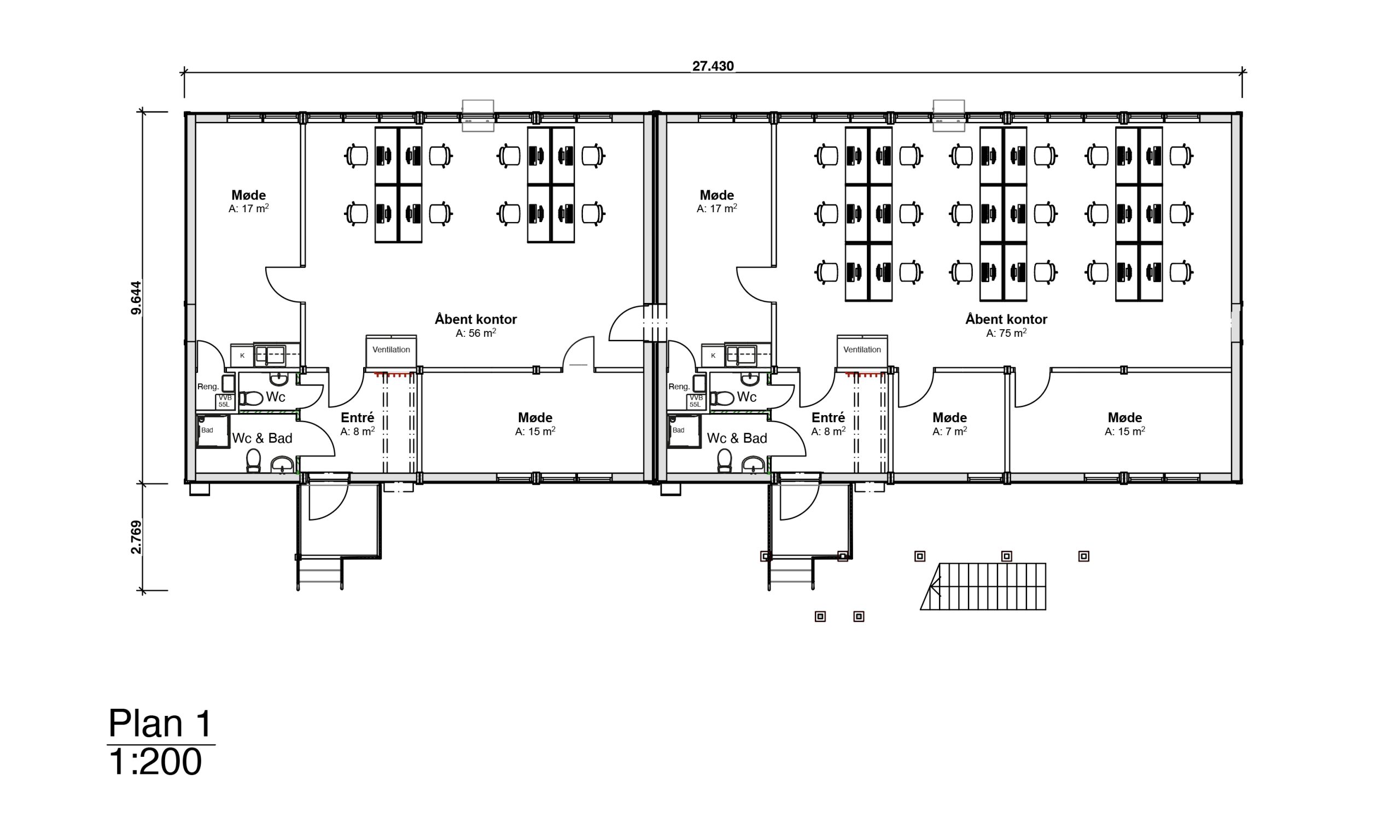
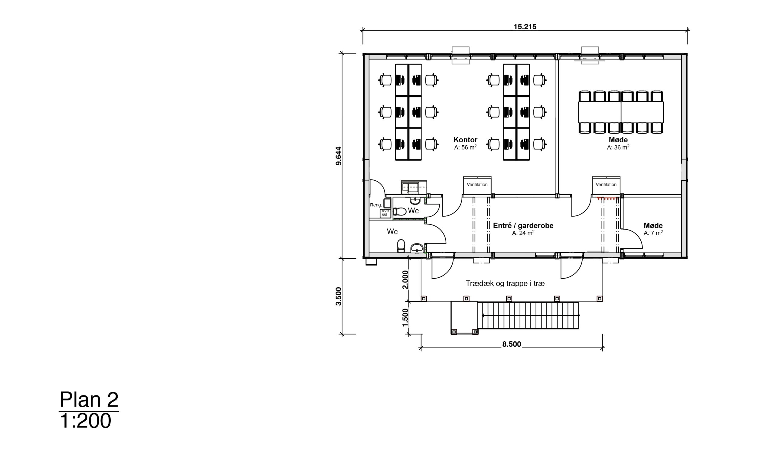
Tscherning A/S er i fuld gang med byggemodningen af Fælledby – en helt ny bydel midt i naturen ved Amager Fælled i København. Byområdet kommer til at dække et areal på 181.000 m², og byggeriet kræver den helt rigtige plads til planlægning og projektstyring. Derfor er Tscherning flyttet ind i et 400 m² skræddersyet projektkontor fra Expandia.
”Fleksibiliteten i indretningen er et stort plus, og vi har fået sammensat rummene, præcis som vi ville have dem. Med storrumskontorer og mange møderum, hvor vi kan mødes på kryds og tværs,” siger Toufik Ghillassi, afdelingschef hos Tscherning A/S.
Hvad koster en sådan løsning, kan modulerne stå på alle typer underlag, og hvad indgår i lejen? Vi ved, at der kan dukke en hel del spørgsmål op, når man begynder at overveje moduler? Derfor står vores eksperter klar til at svare på alt det, du går og tænker på.
Kundesager
Siden vi startede for over 35 år siden har vi leveret tusindvis af midlertidige lokaler til skoler, virksomheder og boliger i Sverige, Danmark, Norge og Finland. Her kan du se nogle af de løsninger, vi har skabt for vores kunder.