Kongens Lyngby
DTU
Fleksible kontorlokaler til projektkontorer, voksende virksomheder og midlertidige etableringer.
Indflytningsklare skolemoduler med gode læringsmiljøer – hurtigt på plads.
Trygge daginstitutionsmoduler med moderne og inspirerende miljøer til leg og læring.
Behagelige boliger i form af korridorværelser eller lejligheder. Hurtigt etableret, når behovet opstår.
Hurtige, fleksible plejemoduler til alt fra lægeklinikker til plejeboliger.
Har du brug for noget ud over det sædvanlige? Vi bygger alt fra avancerede plejemiljøer til hundedaginstitutioner.
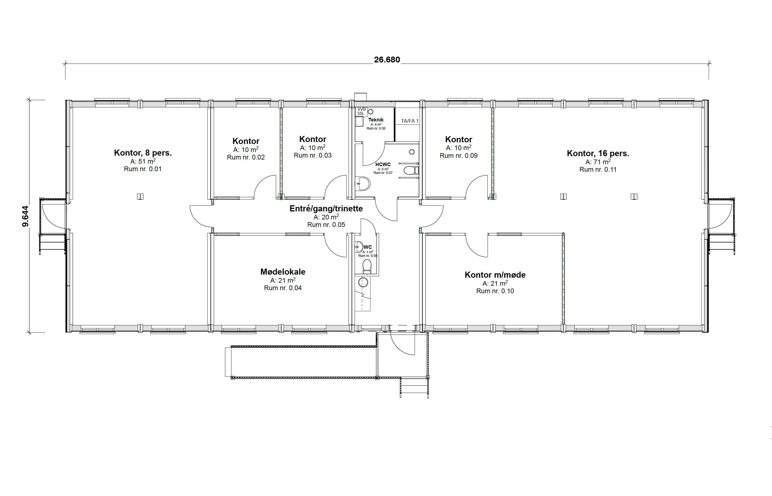
288 m² kontorlokaler lyder måske ikke af meget. Men kravene var høje i mere end én forstand, da vi opstillede et helt nyt modulbyggeri på DTU.
Det var anden gang, vi leverede midlertidige lokaler på DTU´s campus i Kongens Lyngby, og de 10 nye moduler skulle opstilles i et grønt område med mange træer og begrænset plads til montagen. Så kran og lastbiler var nødt til at køre ind af en lille brandvej, og modulerne blev hejst cirka 30 meter over trækronerne og på plads med nærmest kirurgisk præcision!
Hvad koster en sådan løsning, kan modulerne stå på alle typer underlag, og hvad indgår i lejen? Vi ved, at der kan dukke en hel del spørgsmål op, når man begynder at overveje moduler? Derfor står vores eksperter klar til at svare på alt det, du går og tænker på.
Kundesager
Siden vi startede for over 35 år siden har vi leveret tusindvis af midlertidige lokaler til skoler, virksomheder og boliger i Sverige, Danmark, Norge og Finland. Her kan du se nogle af de løsninger, vi har skabt for vores kunder.