Ballerup
Ambu A/S
Fleksible kontorlokaler til projektkontorer, voksende virksomheder og midlertidige etableringer.
Indflytningsklare skolemoduler med gode læringsmiljøer – hurtigt på plads.
Trygge daginstitutionsmoduler med moderne og inspirerende miljøer til leg og læring.
Behagelige boliger i form af korridorværelser eller lejligheder. Hurtigt etableret, når behovet opstår.
Hurtige, fleksible plejemoduler til alt fra lægeklinikker til plejeboliger.
Har du brug for noget ud over det sædvanlige? Vi bygger alt fra avancerede plejemiljøer til hundedaginstitutioner.
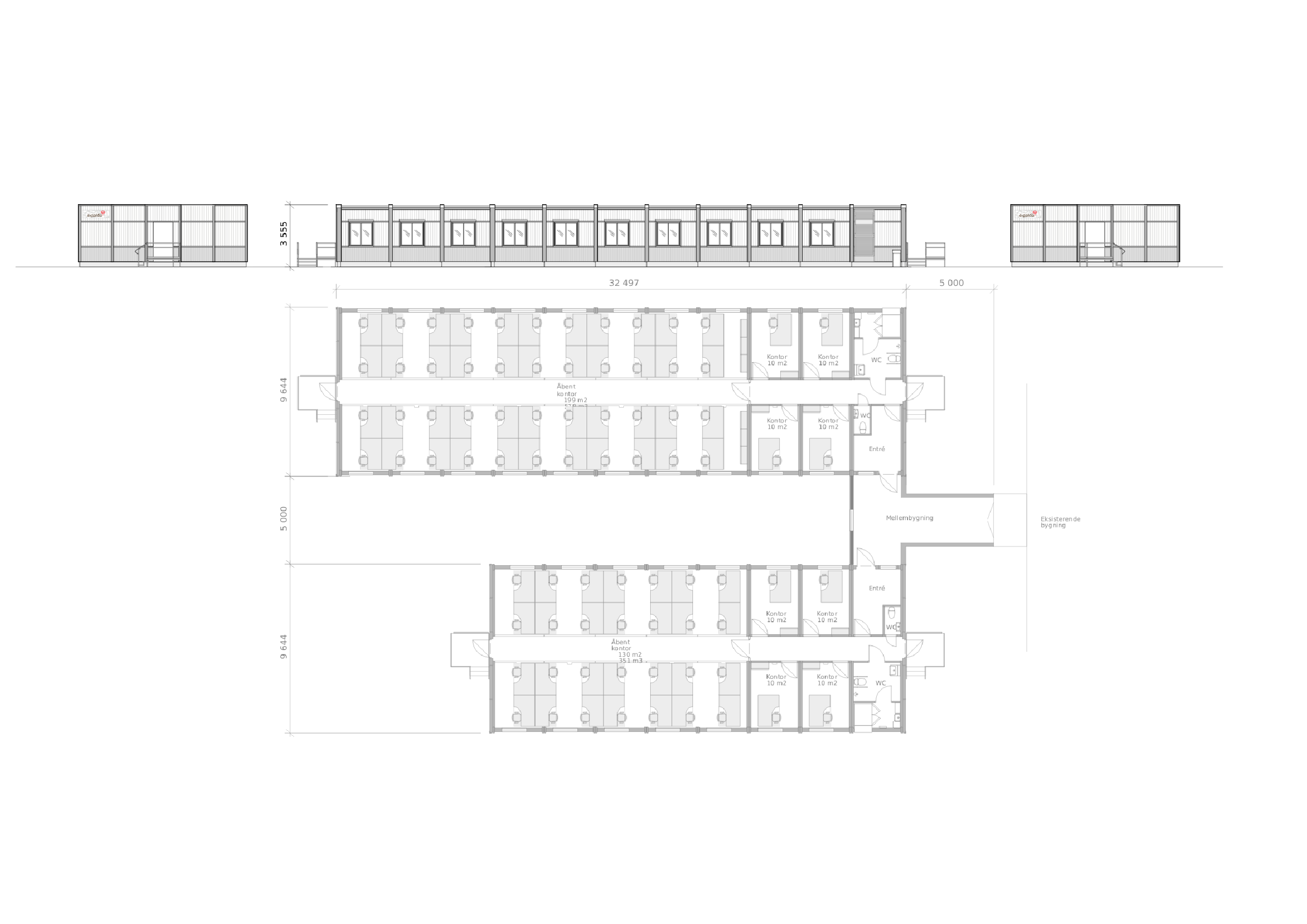
Opstillingen med 25 nye K2000-kontormoduler hos Ambu A/S i Ballerup er et godt eksempel på vores grundidé: Nemlig, at vores moduler hurtigt kan løse behovet for flere – eller færre kvadratmeter.
Siden 2019 har Ambu A/S lejet 19 af vores K2000 kontormoduler. Men der var brug for flere arbejdspladser hos den internationale virksomhed, der udvikler og producerer medicinsk udstyr til hospitaler og redningstjenester. Så på 30 dage opstillede vi 25 nye K2000 kontormoduler og løste opgaven med at skabe 725 nye funktionelle og lyse kvadratmeter, så Ambu A/S i dag har 44 moduler i to etager.
Hvad koster en sådan løsning, kan modulerne stå på alle typer underlag, og hvad indgår i lejen? Vi ved, at der kan dukke en hel del spørgsmål op, når man begynder at overveje moduler? Derfor står vores eksperter klar til at svare på alt det, du går og tænker på.
Kundesager
Siden vi startede for over 35 år siden har vi leveret tusindvis af midlertidige lokaler til skoler, virksomheder og boliger i Sverige, Danmark, Norge og Finland. Her kan du se nogle af de løsninger, vi har skabt for vores kunder.