Kongens Lyngby
DTU – Campus
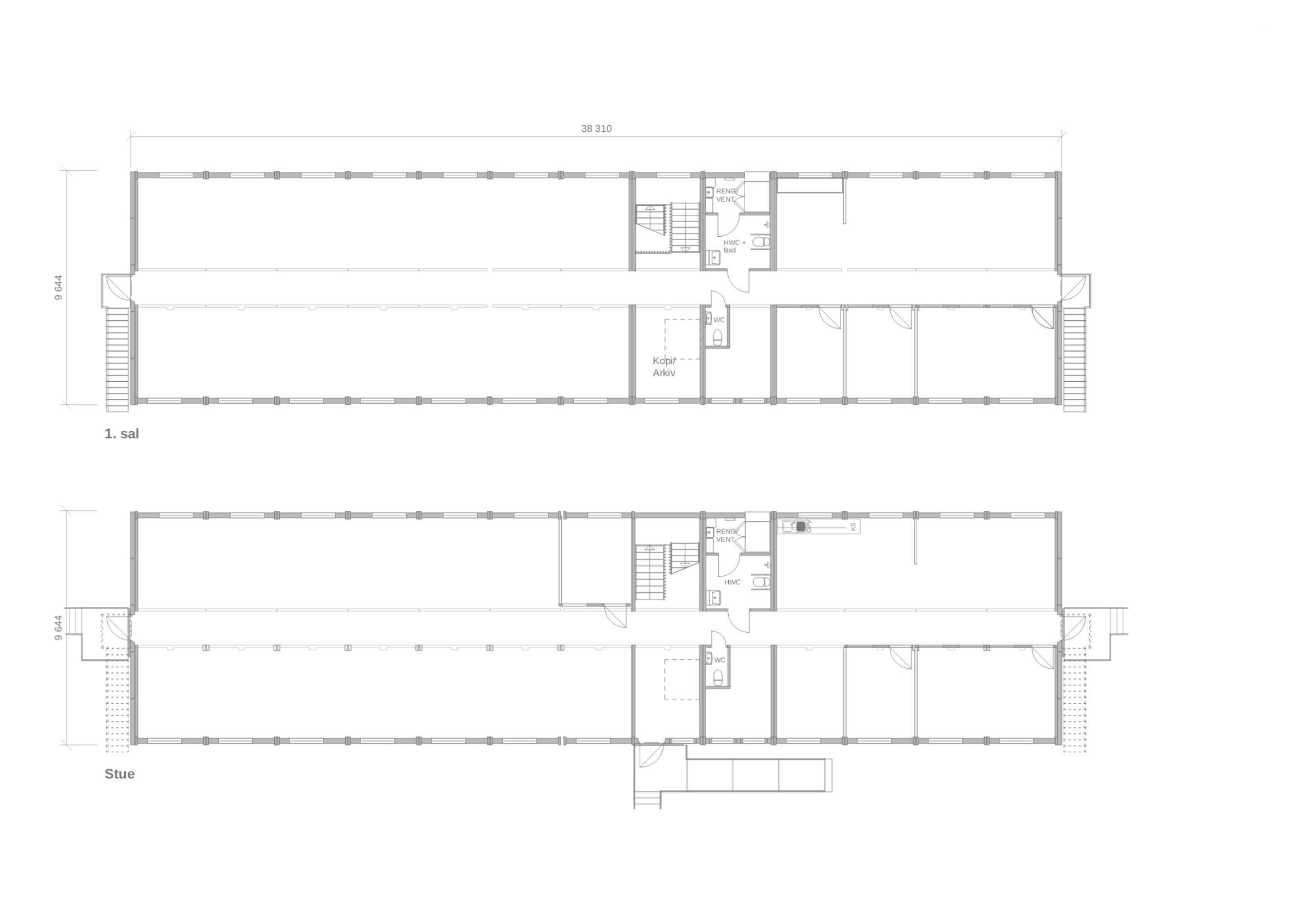
750 m² i to etager på 30 dage = gode midlertidige kontorer
Fleksible kontorlokaler til projektkontorer, voksende virksomheder og midlertidige etableringer.
Indflytningsklare skolemoduler med gode læringsmiljøer – hurtigt på plads.
Trygge daginstitutionsmoduler med moderne og inspirerende miljøer til leg og læring.
Behagelige boliger i form af korridorværelser eller lejligheder. Hurtigt etableret, når behovet opstår.
Hurtige, fleksible plejemoduler til alt fra lægeklinikker til plejeboliger.
Har du brug for noget ud over det sædvanlige? Vi bygger alt fra avancerede plejemiljøer til hundedaginstitutioner.
Danmarks største ingeniøruddannelsesinstitution, DTU i Kongens Lyngby, 10 kilometer nord for København, er i gang med at skabe et nyt og spændende studiemiljø i helt nye forsknings- og undervisningsbygninger. Mens der bygges, er der brug for midlertidige kontorer til DTUs administrative medarbejdere, så på fire uger opførte vi en nøglefærdig administrationsbygning i to etager i Expandia K2000 moduler.
Hvad koster en sådan løsning, kan modulerne stå på alle typer underlag, og hvad indgår i lejen? Vi ved, at der kan dukke en hel del spørgsmål op, når man begynder at overveje moduler? Derfor står vores eksperter klar til at svare på alt det, du går og tænker på.
Kundesager
Siden vi startede for over 35 år siden har vi leveret tusindvis af midlertidige lokaler til skoler, virksomheder og boliger i Sverige, Danmark, Norge og Finland. Her kan du se nogle af de løsninger, vi har skabt for vores kunder.