Hillerød
Sophienborgskolen
Fleksible kontorlokaler til projektkontorer, voksende virksomheder og midlertidige etableringer.
Indflytningsklare skolemoduler med gode læringsmiljøer – hurtigt på plads.
Trygge daginstitutionsmoduler med moderne og inspirerende miljøer til leg og læring.
Behagelige boliger i form af korridorværelser eller lejligheder. Hurtigt etableret, når behovet opstår.
Hurtige, fleksible plejemoduler til alt fra lægeklinikker til plejeboliger.
Har du brug for noget ud over det sædvanlige? Vi bygger alt fra avancerede plejemiljøer til hundedaginstitutioner.
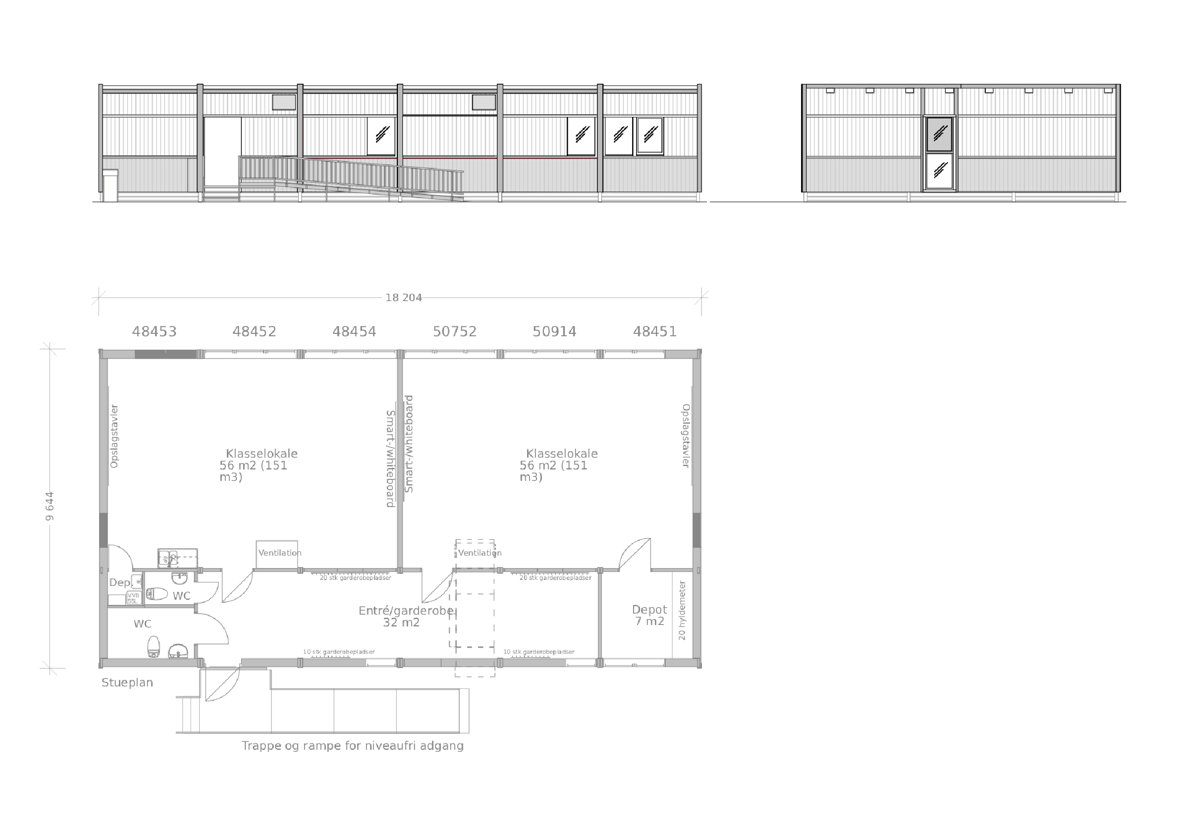
Kravet fra Sophienborgskolen i Hillerød var klart: Giv os to midlertidige klasselokaler, mens vi udvider den eksisterende skole med en ny mellemtrinsbygning til både undervisning og designfagene sløjd, håndarbejde og billedkunst.
På mindre end en måned var opgaven løst. Seks Expandia S2000-skolemoduler på 168 m2 gav plads til de to rummelige klasselokaler på hver 51 m², en stor fordelingsgang med garderobe og to toiletter. Naturligvis med effektiv ventilation, trappe og rampe med niveaufri adgang til undervisningslokalerne.
Hvad koster en sådan løsning, kan modulerne stå på alle typer underlag, og hvad indgår i lejen? Vi ved, at der kan dukke en hel del spørgsmål op, når man begynder at overveje moduler? Derfor står vores eksperter klar til at svare på alt det, du går og tænker på.
Kundesager
Siden vi startede for over 35 år siden har vi leveret tusindvis af midlertidige lokaler til skoler, virksomheder og boliger i Sverige, Danmark, Norge og Finland. Her kan du se nogle af de løsninger, vi har skabt for vores kunder.