Søborg
Gladsaxe Skole
Fleksible kontorlokaler til projektkontorer, voksende virksomheder og midlertidige etableringer.
Indflytningsklare skolemoduler med gode læringsmiljøer – hurtigt på plads.
Trygge daginstitutionsmoduler med moderne og inspirerende miljøer til leg og læring.
Behagelige boliger i form af korridorværelser eller lejligheder. Hurtigt etableret, når behovet opstår.
Hurtige, fleksible plejemoduler til alt fra lægeklinikker til plejeboliger.
Har du brug for noget ud over det sædvanlige? Vi bygger alt fra avancerede plejemiljøer til hundedaginstitutioner.
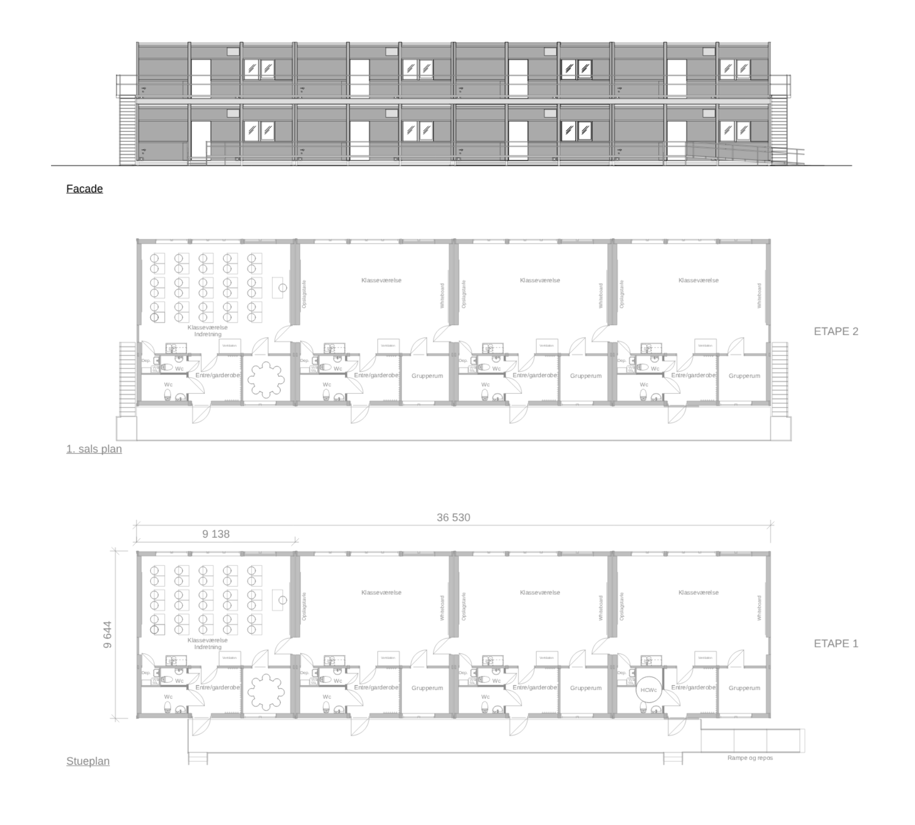
Skimmelsvamp og skoleundervisning rimer dårligt på hinanden. Det oplevede Gladsaxe Skole i 2017, da der blev fundet omfattende angreb af skimmelsvamp i tagkonstruktionen på hele skolen. Enten skulle elever og lærere ”flytte ind” på naboskolerne, eller også kunne de blive i vante omgivelser i deres nærområde og blive undervist i en modulløsning.
Beslutningen blev en 1.176 m² midlertidig skole bygget op i 42 Expandia S2000-skolemoduler. I to etager med 14 klasselokaler, garderober, toiletter, lokaler til gruppearbejde, niveaufri adgang og 250 m² træterrasse.
Hvad koster en sådan løsning, kan modulerne stå på alle typer underlag, og hvad indgår i lejen? Vi ved, at der kan dukke en hel del spørgsmål op, når man begynder at overveje moduler? Derfor står vores eksperter klar til at svare på alt det, du går og tænker på.
Kundesager
Siden vi startede for over 35 år siden har vi leveret tusindvis af midlertidige lokaler til skoler, virksomheder og boliger i Sverige, Danmark, Norge og Finland. Her kan du se nogle af de løsninger, vi har skabt for vores kunder.