Drammen, Norge
Sturlahuset børnehave
Renoveret tunnel: Nye midlertidige lokaler
Naturens eventyr fortsætter – selv under en midlertidig flytning
Fleksible kontorlokaler til projektkontorer, voksende virksomheder og midlertidige etableringer.
Indflytningsklare skolemoduler med gode læringsmiljøer – hurtigt på plads.
Trygge daginstitutionsmoduler med moderne og inspirerende miljøer til leg og læring.
Behagelige boliger i form af korridorværelser eller lejligheder. Hurtigt etableret, når behovet opstår.
Hurtige, fleksible plejemoduler til alt fra lægeklinikker til plejeboliger.
Har du brug for noget ud over det sædvanlige? Vi bygger alt fra avancerede plejemiljøer til hundedaginstitutioner.
Dette projekt er opført i vores naboland Norge. Andre regler kan være gældende for Danmark.
Kontakt os gerne for en dialog om jeres behov – så finder vi sammen en løsning, der passer til jer.
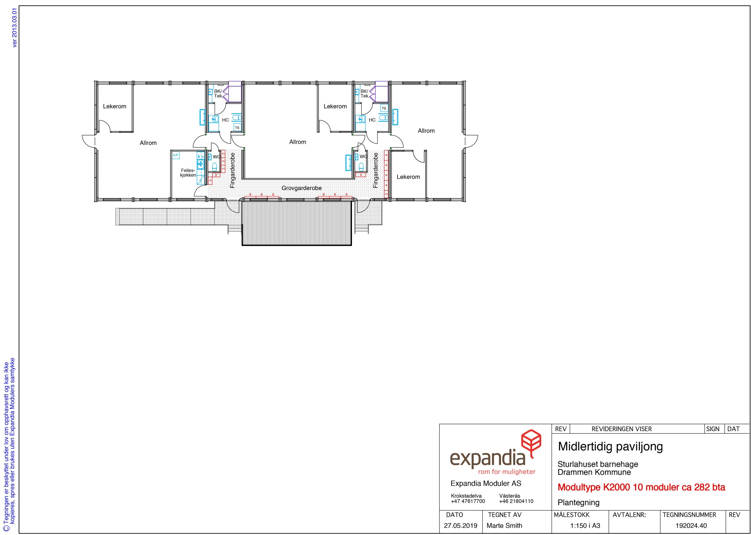
Tunnelen Spiralen i Drammen, Norge, havde behov for en opgradering, og det blev besluttet at lukke tunnelen ved årsskiftet 2019. Spiralen er den eneste adgang med bil til Klokkargården Naturbørnehave, og derfor var der behov for at flytte børnehaven midlertidigt, mens arbejdet i tunnelen stod på.
Dette resulterede i, at 10 stk. moduler fra Expandia Moduler skulle huse småbørnsafdelingen i den midlertidige periode.
Storbørnsafdelingen blev midlertidigt placeret i Sturlahuset, overfor småbørnspavillonen. Sturlahuset byder på smukke udendørs omgivelser, på samme måde som Spiralen. Så for denne naturbørnehave gik relokaliseringen ikke på kompromis med de eventyr, børnene oplever udendørs.
Hvad koster en sådan løsning, kan modulerne stå på alle typer underlag, og hvad indgår i lejen? Vi ved, at der kan dukke en hel del spørgsmål op, når man begynder at overveje moduler. Derfor står vores eksperter til rådighed for at svare på alt det, du går og tænker over.
Kundesager
Siden vi startede for over 35 år siden har vi leveret tusindvis af midlertidige lokaler til skoler, virksomheder og boliger i Sverige, Danmark, Norge og Finland. Her kan du se nogle af de løsninger, vi har skabt for vores kunder.