Frederikssund
Børnehuset Gyldensten
Fleksible kontorlokaler til projektkontorer, voksende virksomheder og midlertidige etableringer.
Indflytningsklare skolemoduler med gode læringsmiljøer – hurtigt på plads.
Trygge daginstitutionsmoduler med moderne og inspirerende miljøer til leg og læring.
Behagelige boliger i form af korridorværelser eller lejligheder. Hurtigt etableret, når behovet opstår.
Hurtige, fleksible plejemoduler til alt fra lægeklinikker til plejeboliger.
Har du brug for noget ud over det sædvanlige? Vi bygger alt fra avancerede plejemiljøer til hundedaginstitutioner.
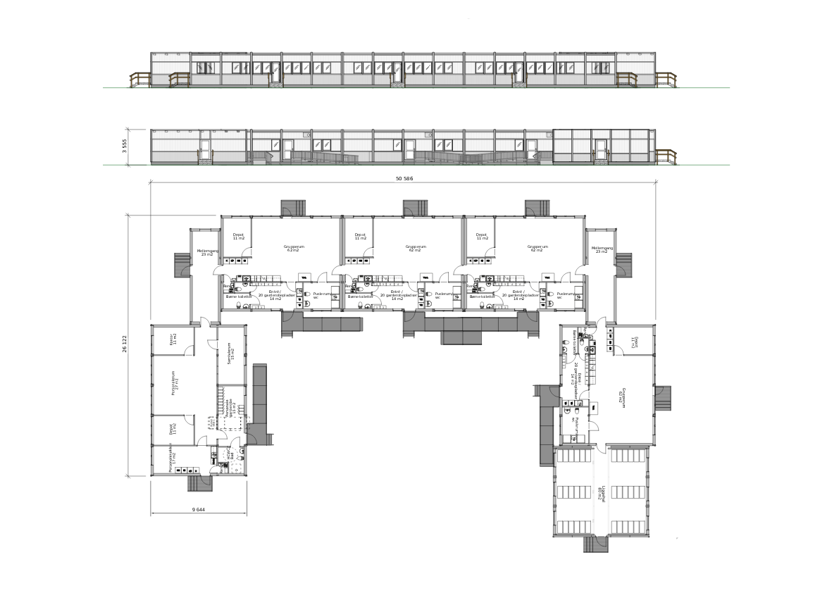
Hvad stiller en kommune op, når børnetallet stiger så hurtigt, at daginstitutionerne ikke kan følge med?
Den opstiller midlertidige moduler, mens de eksisterende lokaler bliver udvidet og renoveret. Det var i hvert fald, hvad Frederikssund Kommune gjorde, da vikingebyen havde et akut pladsbehov i sommeren 2020.
Henover sommerferien – på under tre uger – blev 24 Expandia S2000-moduler leveret og opstillet, så Børnehuset Gyldensten kunne slå dørene op for de mange spændte vuggestue- og børnehavebørn i august. Entreprisen blev løst i tæt samarbejde med kommunen, entreprenører og ikke mindst daginstitutionens naboer.
Hvad koster en sådan løsning, kan modulerne stå på alle typer underlag, og hvad indgår i lejen? Vi ved, at der kan dukke en hel del spørgsmål op, når man begynder at overveje moduler? Derfor står vores eksperter klar til at svare på alt det, du går og tænker på.
Kundesager
Siden vi startede for over 35 år siden har vi leveret tusindvis af midlertidige lokaler til skoler, virksomheder og boliger i Sverige, Danmark, Norge og Finland. Her kan du se nogle af de løsninger, vi har skabt for vores kunder.