Ursvik, Sverige

Daginstitutionen Milot

Förskolan Milot i Ursvik med fin och stor lekpark och lekyta utanför paviljongen, lekande glada barn
  • Kunde: Sundbybergs Stad
  • Bruttoareal: 1800 m²
  • Modultype: S2000
  • Indflytningsår: 2012
  • Beliggenhed: Ursvik, Sverige
  • Operation: Daginsitution
  • Antal moduler: 62
  • Varmesystem: Varmepumpe luft/vand

Dette projekt er opført i vores naboland Sverige. Andre regler kan være gældende for Danmark.

Kontakt os gerne for en dialog om jeres behov – så finder vi sammen en løsning, der passer til jer.

Kapprum på förskolan milot i Ursvik, jackor hängandes i olika färger, moduler från Expandia

1800 m² daginstitution

Sundbyberg byggede en helt ny bydel, Ursvik. Udbygningen af nye boliger har medført et stort behov for daginstitutionspladser for at imødekomme tilflytningen af familier til den børnevenlige bydel. Gennem sit rammeaftale med Sundbybergs Kommune fik Expandia mulighed for at levere førskolen Milot på godt 1800 m² for at dække behovet.

Lekmatta och lekyta på förskolan milot i Ursvik

Tæt på skov og stor gårdhave

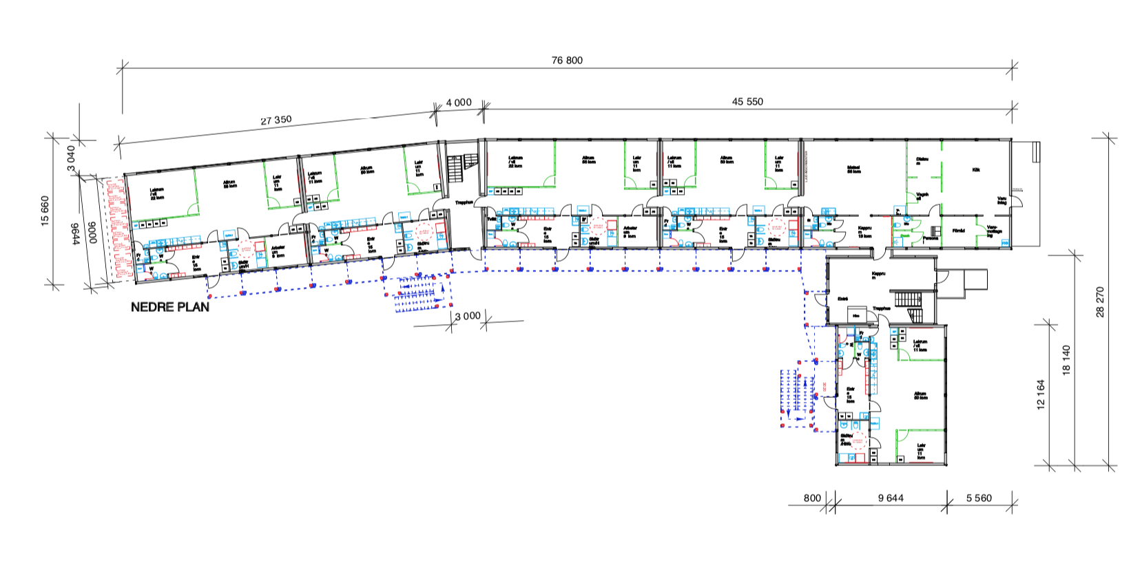
62 stk. S2000‑moduler blev monteret, og Milot er blevet en populær førskole med 10 lyse og moderne afdelinger med plads til 170 børn.

Daginstitutionen ligger tæt på skov og natur og har en stor indre gård, mange små kreative rum, køkken i hver afdeling samt indvendige trapper og elevatorer mellem de to etager. Lokalerne opvarmes med vandbåren varme og rummer også produktionskøkken, spisesal og personalefaciliteter.

Förskolan Milot i Ursvik med fin och stor lekpark och lekyta utanför paviljongen, lekande glada barn
Michael Haugaard Møller

Ingen spørgsmål er for små

Hvad koster en sådan løsning, kan modulerne stå på alle typer underlag, og hvad indgår i lejen? Vi ved, at der kan dukke en hel del spørgsmål op, når man begynder at overveje moduler. Derfor står vores eksperter til rådighed for at svare på alt det, du går og tænker over.

Michael Haugaard Møller, Salg og markedsføring

Kundcase

Se liknande kundcase

Sedan vi startade för över 30 år sedan har vi levererat tusentals tillfälliga lokaler till skolor, företag och boenden över hela Sverige. Här kan du se några av de lösningar vi skapat åt våra kunder.