Brøndby
Brøndbyøster Skole
Fleksible kontorlokaler til projektkontorer, voksende virksomheder og midlertidige etableringer.
Indflytningsklare skolemoduler med gode læringsmiljøer – hurtigt på plads.
Trygge daginstitutionsmoduler med moderne og inspirerende miljøer til leg og læring.
Behagelige boliger i form af korridorværelser eller lejligheder. Hurtigt etableret, når behovet opstår.
Hurtige, fleksible plejemoduler til alt fra lægeklinikker til plejeboliger.
Har du brug for noget ud over det sædvanlige? Vi bygger alt fra avancerede plejemiljøer til hundedaginstitutioner.
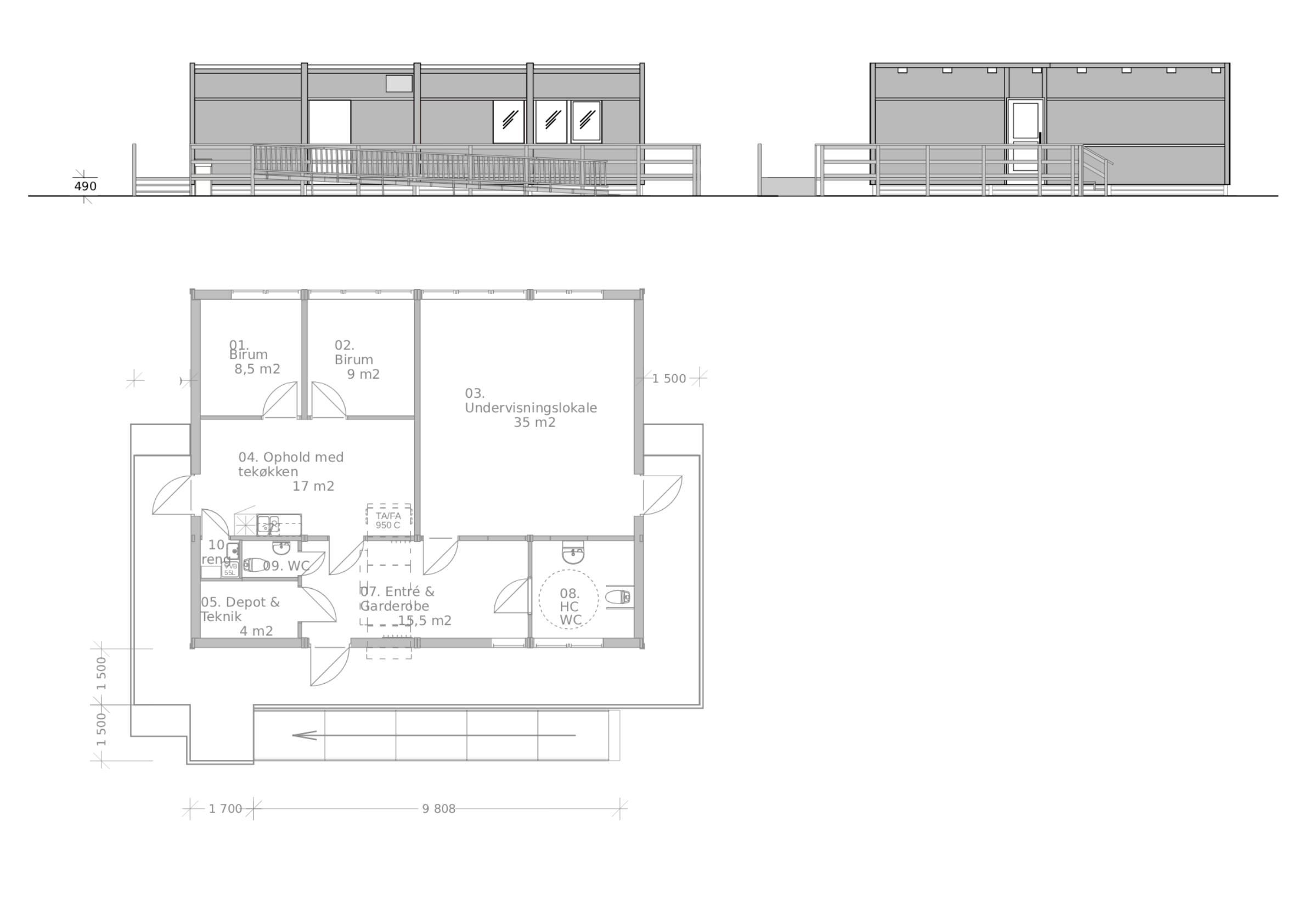
118 m² børnehave klar på 15 dage. Det er det midlertidige moduler kan! Løse et akut behov – på kort tid.
Brøndby Kommune havde brug for ekstra plads til børnehaven på Brøndbyøster Skole. Så midt i sommerferien opsatte vi fire Expandia S2000 skolemoduler med fælleslokale, toiletter, opholdsrum med tekøkken og garderobe på lidt over to uger. Og så var vi tilmed de billigste til opgaven.
Hvad koster en sådan løsning, kan modulerne stå på alle typer underlag, og hvad indgår i lejen? Vi ved, at der kan dukke en hel del spørgsmål op, når man begynder at overveje moduler? Derfor står vores eksperter klar til at svare på alt det, du går og tænker på.
Kundesager
Siden vi startede for over 35 år siden har vi leveret tusindvis af midlertidige lokaler til skoler, virksomheder og boliger i Sverige, Danmark, Norge og Finland. Her kan du se nogle af de løsninger, vi har skabt for vores kunder.