Amager
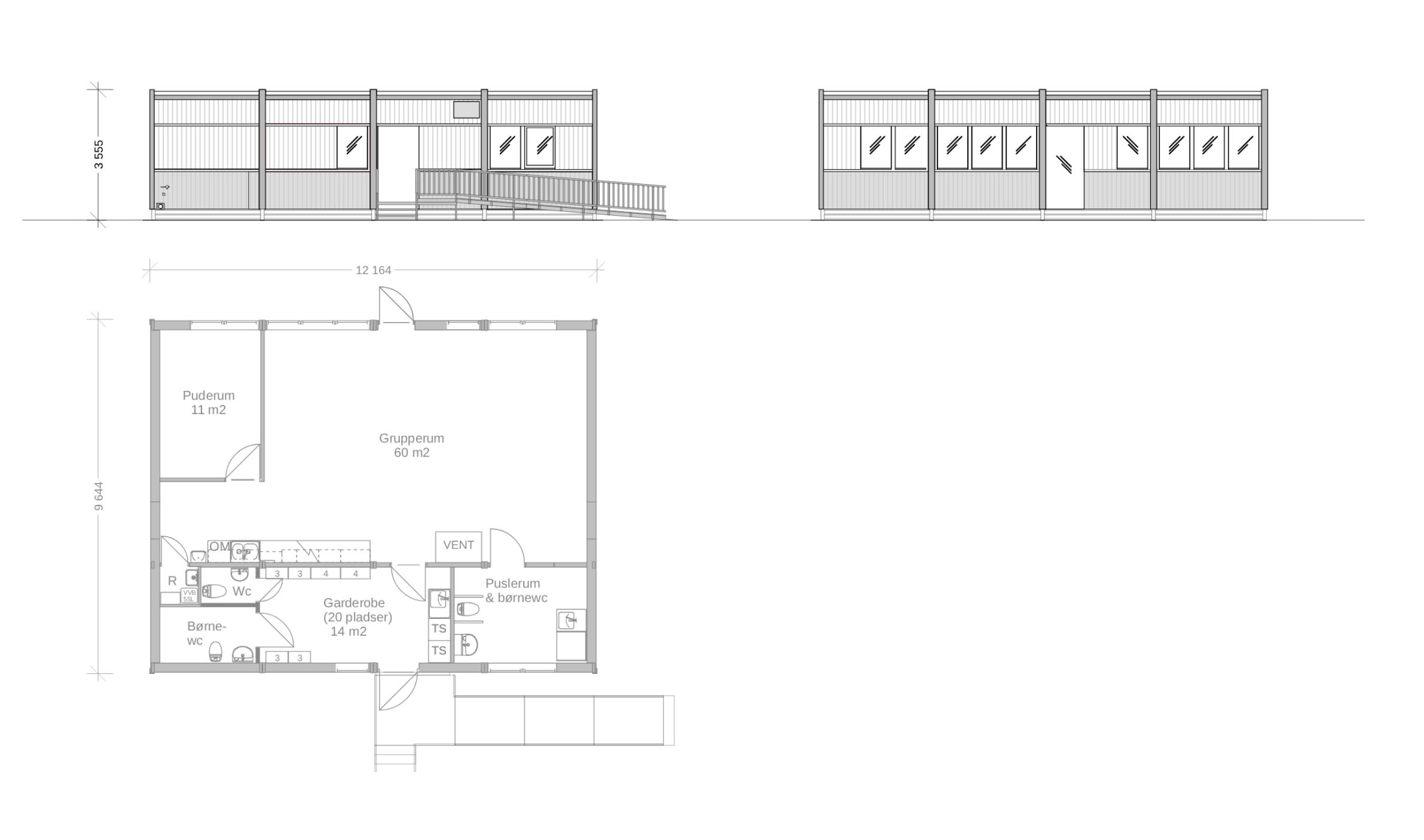
Børnehaven Ugandavej
Fleksible kontorlokaler til projektkontorer, voksende virksomheder og midlertidige etableringer.
Indflytningsklare skolemoduler med gode læringsmiljøer – hurtigt på plads.
Trygge daginstitutionsmoduler med moderne og inspirerende miljøer til leg og læring.
Behagelige boliger i form af korridorværelser eller lejligheder. Hurtigt etableret, når behovet opstår.
Hurtige, fleksible plejemoduler til alt fra lægeklinikker til plejeboliger.
Har du brug for noget ud over det sædvanlige? Vi bygger alt fra avancerede plejemiljøer til hundedaginstitutioner.
Vores S2000 skolemoduler blev sendt 15 meter op i luften, da Børnehaven Ugandavej på Amager skulle udvides med 118 midlertidige kvadratmeter. For børnehaven er nabo til det naturskønne Kalvebod Fælled, hvor rekreative arealer og smukke høje træer gør det vanskeligt at komme til, når man skal placere moduler på hver 28 m².
I løbet af en arbejdsdag, og ved hjælp af en mobilkran, kom de fire moduler på plads ved børnehavens klatretårn – uden at knække en gren.
Hvad koster en sådan løsning, kan modulerne stå på alle typer underlag, og hvad indgår i lejen? Vi ved, at der kan dukke en hel del spørgsmål op, når man begynder at overveje moduler? Derfor står vores eksperter klar til at svare på alt det, du går og tænker på.
Kundesager
Siden vi startede for over 35 år siden har vi leveret tusindvis af midlertidige lokaler til skoler, virksomheder og boliger i Sverige, Danmark, Norge og Finland. Her kan du se nogle af de løsninger, vi har skabt for vores kunder.