Valby
Startup Housing
Fleksible kontorlokaler til projektkontorer, voksende virksomheder og midlertidige etableringer.
Indflytningsklare skolemoduler med gode læringsmiljøer – hurtigt på plads.
Trygge daginstitutionsmoduler med moderne og inspirerende miljøer til leg og læring.
Behagelige boliger i form af korridorværelser eller lejligheder. Hurtigt etableret, når behovet opstår.
Hurtige, fleksible plejemoduler til alt fra lægeklinikker til plejeboliger.
Har du brug for noget ud over det sædvanlige? Vi bygger alt fra avancerede plejemiljøer til hundedaginstitutioner.
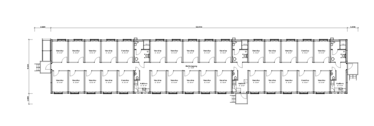
Det nye københavnske pilotprojekt “Startup Housing” et godt eksempel på, at vores moduler kan bruges til meget andet end daginstitutioner, skoler og kontorer. For at imødekomme den store mangel på studieboliger i hovedstadsområdet blev 18 Expandia-moduler opstillet ved Gl. Ellebjerg Station i Valby og gav 40 studerende midlertidigt tag over hovedet.
“Vi blev faktisk positivt overraskede over, hvor store de var. Vi havde slet ikke regnet med, at vi kunne få næsten få alle vores ting derind. Så vi er faktisk meget glade for, hvor godt det er,” udtaler matematikstuderende Sebastian Nørgaard, der lige er flyttet ind i én af de midlertidige studieboliger.
Hvad koster en sådan løsning, kan modulerne stå på alle typer underlag, og hvad indgår i lejen? Vi ved, at der kan dukke en hel del spørgsmål op, når man begynder at overveje moduler? Derfor står vores eksperter klar til at svare på alt det, du går og tænker på.
Kundesager
Siden vi startede for over 35 år siden har vi leveret tusindvis af midlertidige lokaler til skoler, virksomheder og boliger i Sverige, Danmark, Norge og Finland. Her kan du se nogle af de løsninger, vi har skabt for vores kunder.