Nordborg
Botilbud Ellebo
Fleksible kontorlokaler til projektkontorer, voksende virksomheder og midlertidige etableringer.
Indflytningsklare skolemoduler med gode læringsmiljøer – hurtigt på plads.
Trygge daginstitutionsmoduler med moderne og inspirerende miljøer til leg og læring.
Behagelige boliger i form af korridorværelser eller lejligheder. Hurtigt etableret, når behovet opstår.
Hurtige, fleksible plejemoduler til alt fra lægeklinikker til plejeboliger.
Har du brug for noget ud over det sædvanlige? Vi bygger alt fra avancerede plejemiljøer til hundedaginstitutioner.
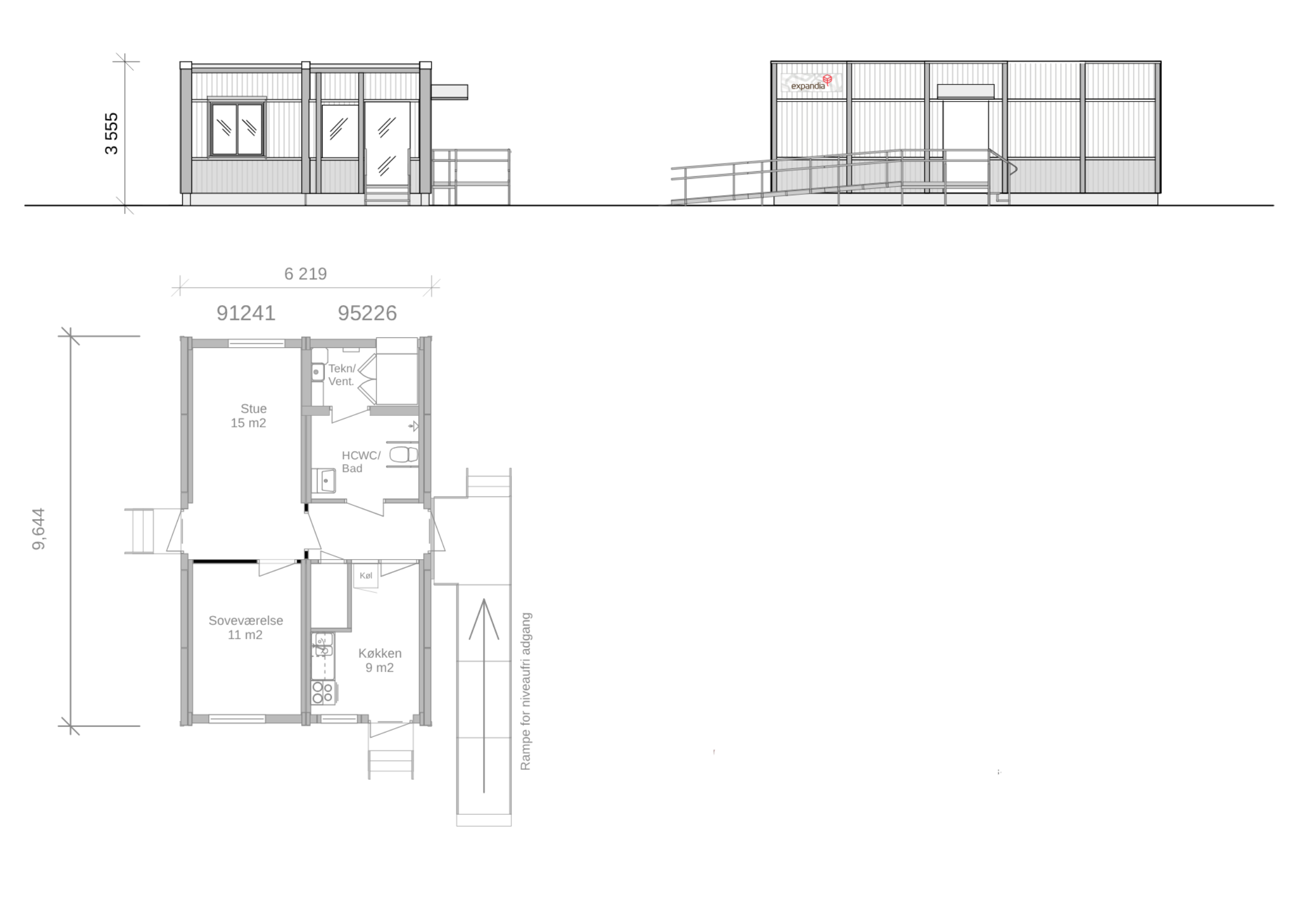
Stue, soveværelse, køkken, bad og toilet. Et rigtigt hjem. Det var præcis det Sønderborg Kommune havde brug for at få opstillet tæt på det eksisterende bosted Ellebo, så den sønderjyske kommune kunne tilbyde de mest sårbare borgere et godt sted at være.
Boligen på 56 m² blev opbygget af to Expandia K2000-moduler med køkkenelementer, hårde hvidevarer, fuldt udstyret badeværelse med bruseniche og udvendig, niveaufri adgang med rampe. Klar til indflytning på mindre end 2 uger.
Hvad koster en sådan løsning, kan modulerne stå på alle typer underlag, og hvad indgår i lejen? Vi ved, at der kan dukke en hel del spørgsmål op, når man begynder at overveje moduler? Derfor står vores eksperter klar til at svare på alt det, du går og tænker på.
Kundesager
Siden vi startede for over 35 år siden har vi leveret tusindvis af midlertidige lokaler til skoler, virksomheder og boliger i Sverige, Danmark, Norge og Finland. Her kan du se nogle af de løsninger, vi har skabt for vores kunder.