Skillingaryd, Sverige

Skillingaryds lægecenter

Skillingaryds vårdcentral uppförd i vårdmoduler från Expandia, med flexibel moduluppbyggnad anpassad för hälso- och sjukvårdsverksamhet
  • Kunde: Region Jönköping län
  • Bruttoareal: 1178 m²
  • Modultype: K10
  • Kontraktperiode: 48 måneder
  • Indflytningsår: 2023
  • Beliggenhed: Skillingaryd, Sverige
  • Operation: Lægecenter
  • Antal moduler: 49

Dette projekt er opført i vores naboland Sverige. Andre regler kan være gældende for Danmark.

Kontakt os gerne for en dialog om jeres behov – så finder vi sammen en løsning, der passer til jer.

Her er det lyst og pænt med masser af vinduer og dagslys. Det føles naturligvis rigtig godt at vide, at både medarbejdere og borgere nu opholder sig i lokaler, der ikke påvirker helbredet negativt.

Ann-Christin Roos, Virksomhedschef.
Reception på Skillingaryds vårdcentral i moderna vårdmoduler från Expandia med glaslucka och väntrumsdel

Lægecenter i lyse moduler

Lægecenteret Bra Liv (Godt Liv) i Skillingaryd har haft langvarige problemer med vandskader og skimmelsvamp. For at løse disse udfordringer havde de brug for en hurtig og effektiv løsning.

Driften er nu flyttet til et lægecenter opført med moduler fra Expandia, som de vil leje i fire år. Denne løsning gør det muligt for dem fortsat at tilbyde sundhedstjenester til deres patienter uden afbrydelser, samtidig med at de kan arbejde på at løse problemerne på det permanente lægecenter.

Behandlingsrum på Skillingaryds vårdcentral i vårdmoduler från Expandia, utrustat för undersökning och fysioterapi i ljus och funktionell vårdmiljö

Behageligt lægecenter

– Det føles som om, vi har fået et helt nyt lægecenter, siger Alexandra Sandberg, distriktssygeplejerske.

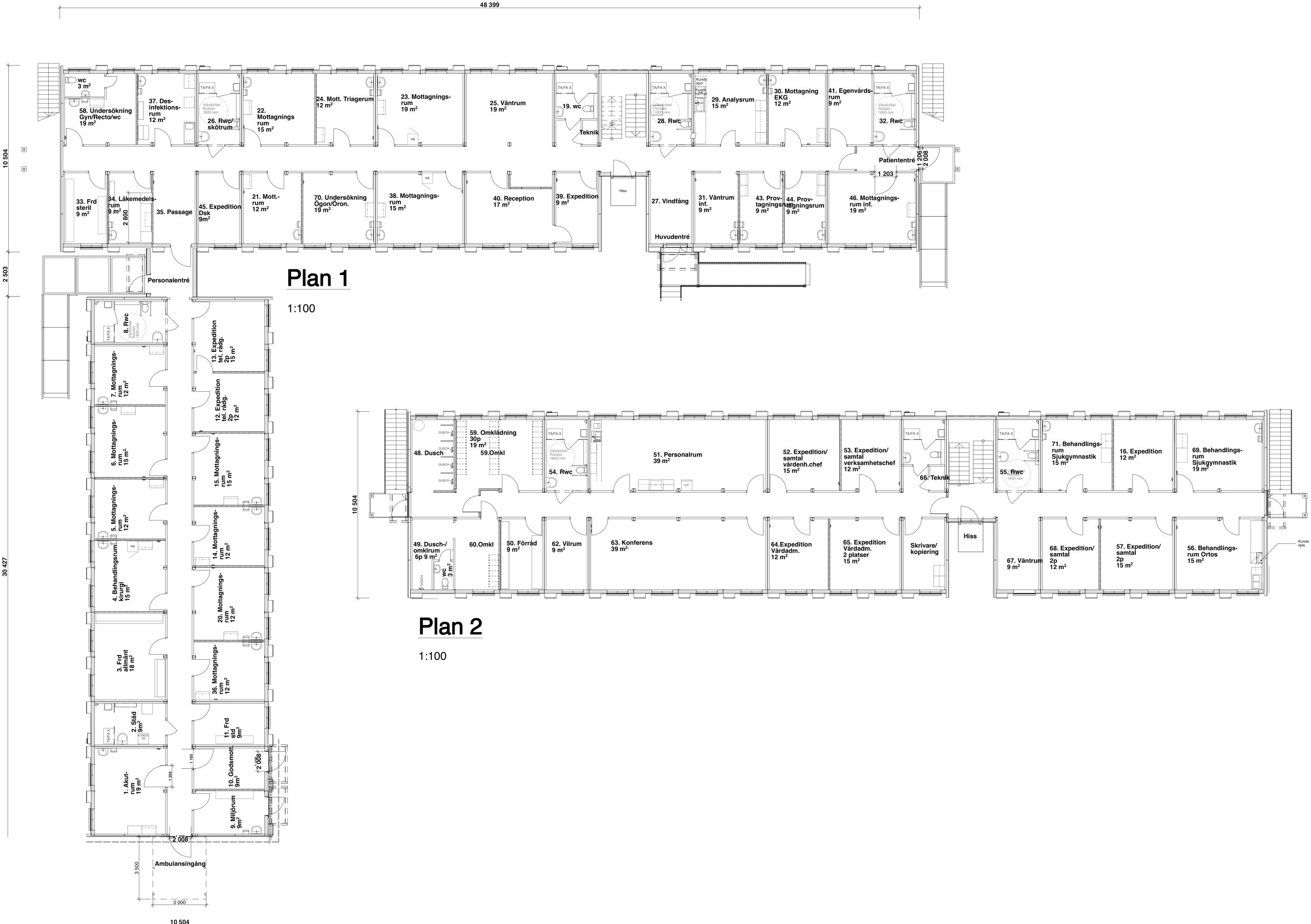
Modulløsningen består i dag af 49 K10‑moduler med modtagerum, undersøgelsesrum, behandlingsrum/kirurgi, akutrumsfaciliteter, venteværelse, personalerum osv.

Anatomisk skelettmodell i behandlingsrum på Skillingaryds vårdcentral, inredd i moderna vårdmoduler från Expandia med ljusa ytor och funktionell vårdmiljö
Michael Haugaard Møller

Ingen spørgsmål er for små

Hvad koster en sådan løsning, kan modulerne stå på alle typer underlag, og hvad indgår i lejen? Vi ved, at der kan dukke en hel del spørgsmål op, når man begynder at overveje moduler. Derfor står vores eksperter til rådighed for at svare på alt det, du går og tænker over.

Michael Haugaard Møller, Salg og markedsføring

Kundcase

Se lignende kundesager

Siden vi startede for over 35 år siden har vi leveret tusindvis af midlertidige lokaler til skoler, virksomheder og boliger i Sverige, Danmark, Norge og Finland. Her kan du se nogle af de løsninger, vi har skabt for vores kunder.