Göteborg, Sverige

Östra Hospitalet Göteborg

Moduler från Expandia vid Östra sjukhuset i Göteborg, använda som kirurgmottagning och förlossningsavdelning, placerade intill sjukhusets ordinarie byggnad.
  • Kunde: Västfastigheter - ejendomsforvaltningen
  • Bruttoareal: 2400 m²
  • Modultype: K2000 (specialbyggede)
  • Indflytningsår: Kirurgimodtagelsen 2014 med tilbygning 2017 Fødeafdelingen 2018
  • Beliggenhed: Göteborg, Sverige
  • Operation: Kirurgisk modtagelse og fødeafdeling
  • Antal moduler: 24

Dette projekt er opført i vores naboland Sverige. Andre regler kan være gældende for Danmark.

Kontakt os gerne for en dialog om jeres behov – så finder vi sammen en løsning, der passer til jer.

Moduler från Expandia vid Östra sjukhuset i Göteborg, använda som kirurgmottagning och förlossningsavdelning, placerade intill sjukhusets ordinarie byggnad.

Kirurgisk modtagelse og fødeafdeling fra Expandia

Hospitalet Östra i Göteborg lejer i øjeblikket to midlertidige bygninger fra Expandia.

Kirurgimodtagelsen har haft fuld drift i Expandias moduler siden 2014 med en udvidelse i foråret 2017, og i efteråret 2018 udvider fødeafdelingen sine lokaler med en ny pavillon.

Entré till förlossningsavdelningen vid Östra sjukhuset i Göteborg, där moduler från Expandia används för förlossning, integrerade med sjukhusområdet.

Overholder høje krav for sterile miljøer

Hospitalsmiljøer har meget høje krav, både når det gælder at kunne opretholde et sterilt miljø, skrappe tilgængelighedskrav og også alarm- og kaldesystemer, som i dette tilfælde integreres med de eksisterende systemer.

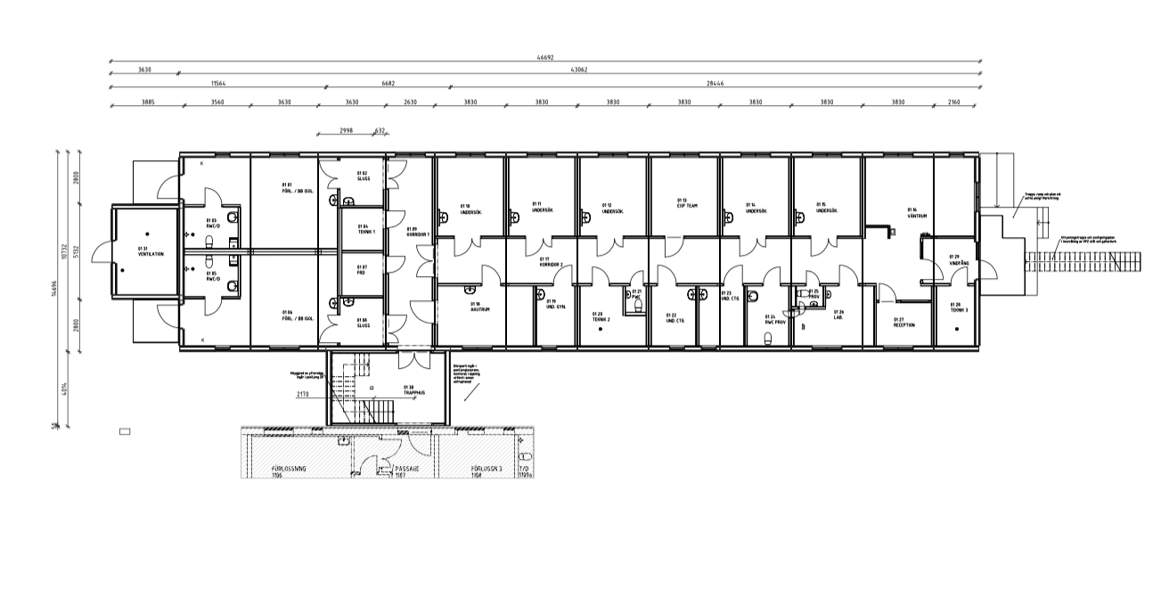
Til Östra Hospitalet blev der opført specialmoduler for at imødekomme kravene, men de er i udgangspunktet baseret på Expandias K2000‑moduler. De to bygninger består i alt af 26 moduler i to etager og har facadeplader i gråt kompositmateriale for at passe ind med de øvrige bygninger i området.

Undersökningsrum i modul från Expandia vid Östra sjukhuset i Göteborg, utrustat med förvaring, arbetsbänk, kylskåp, handfat och medicinsk väggutrustning för vårdverksamhet.
Michael Haugaard Møller

Ingen spørgsmål er for små

Hvad koster en sådan løsning, kan modulerne stå på alle typer underlag, og hvad indgår i lejen? Vi ved, at der kan dukke en hel del spørgsmål op, når man begynder at overveje modul­er? Derfor står vores eksperter klar til at svare på alt det, du går og tænker på.

Michael Haugaard Møller, Salg og markedsføring

Kundesager

Se lignende kundesager

Siden vi startede for over 35 år siden har vi leveret tusindvis af midlertidige lokaler til skoler, virksomheder og boliger i Sverige, Danmark, Norge og Finland. Her kan du se nogle af de løsninger, vi har skabt for vores kunder.