Örebro, Sverige

Skebäcks lægecenter

Skebäcks vårdcentral i Örebro, uppförd med vårdmoduler från Expandia, omgiven av grönska och med tillgänglig entré ramp.
  • Kunde: Länsgården Fastigheter AB
  • Bruttoareal: 350 m²
  • Modultype: K10
  • Kontraktperiode: 36 måneder
  • Indflytningsår: 2019
  • Beliggenhed: Örebro, Sverige
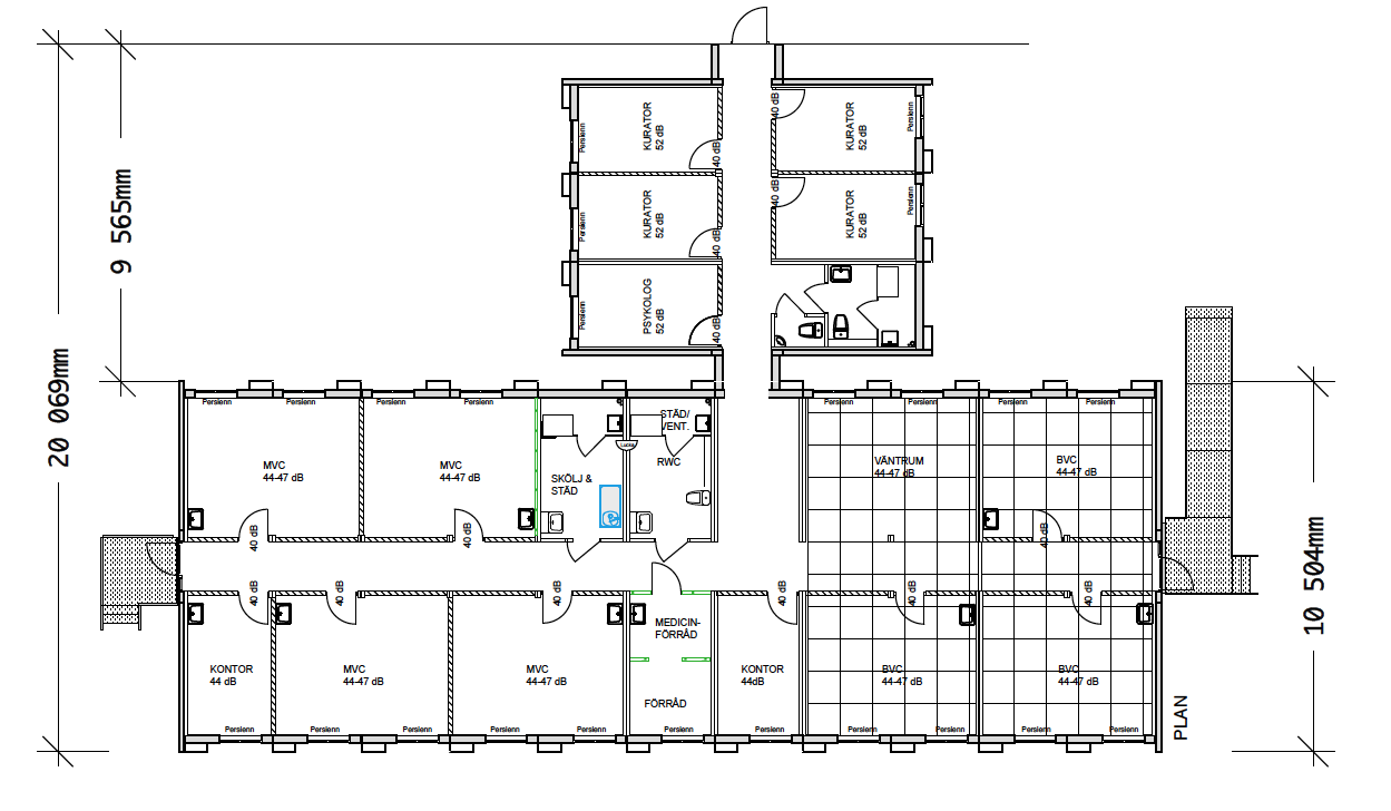
  • Operation: Svangreklinik og børnesundhedspleje
  • Antal moduler: 14

Dette projekt er opført i vores naboland Sverige. Andre regler kan være gældende for Danmark.

Kontakt os gerne for en dialog om jeres behov – så finder vi sammen en løsning, der passer til jer.

Skebäcks vårdcentral i Örebro, uppförd med vårdmoduler från Expandia, omgiven av grönska och med tillgänglig entré ramp.

En flexibel modulløsning over tid

Skebäcks lægecenter ligger smukt placeret ved siden af Wadköping og Skytteparken i Örebro. Allerede i 2014 blev Expandias moduler sat op dér for at fungere som midlertidigt svangreklinik og børnesundhedspleje, men i 2019 skulle modulerne flyttes, da området skulle bruges til en udvidelse af det permanente lægecenter.

I forbindelse med dette blev modulerne moderniseret og renoveret indvendigt og er nu bygget sammen med den eksisterende permanente bygning.

Exteriör av moduluppförd verksamhetslokal från Expandia med fönster och fasadpartier, omgiven av träd och grönska.

Svangreklinik og børnesundhedspleje

De 14 K10-moduler fungerer i dag som svangreklinik og børnesundhedspleje med samtalerum, kontorer og depotrum.

Skebäcks vårdcentral i Örebro, uppförd med vårdmoduler från Expandia, omgiven av grönska och med tillgänglig entré ramp.
Michael Haugaard Møller

Ingen spørgsmål er for små

Hvad koster en sådan løsning, kan modulerne stå på alle typer underlag, og hvad indgår i lejen? Vi ved, at der kan dukke en hel del spørgsmål op, når man begynder at overveje modul­kontorer. Derfor står vores eksperter til rådighed for at svare på alt det, du går og tænker over.

Michael Haugaard Møller, Salg og markedsføring

Kundcase

Se lignende kundesager

Siden vi startede for over 35 år siden har vi leveret tusindvis af midlertidige lokaler til skoler, virksomheder og boliger i Sverige, Danmark, Norge og Finland. Her kan du se nogle af de løsninger, vi har skabt for vores kunder.